Das Gebäude der ehemaligen Mühle wurde im Jahr 2020-2021 komplett nach
neuestem Energie- und Wohnstandard umgebaut.
Durch die Verwendung hochwertiger Materialien in Kombination mit den erhaltenen Designelementen ergibt sich ein besonderes Wohlfühlklima.
Die Mühle ist eingebettet in einen alten Baumbestand und der angrenzende Priorgraben laden zum Verweilen ein.
Allen Mietern steht ein Partyraum und Indoorspielplatz in der umgebauten Scheune, sowie ein überdachter Grillplatz zur Verfügung.
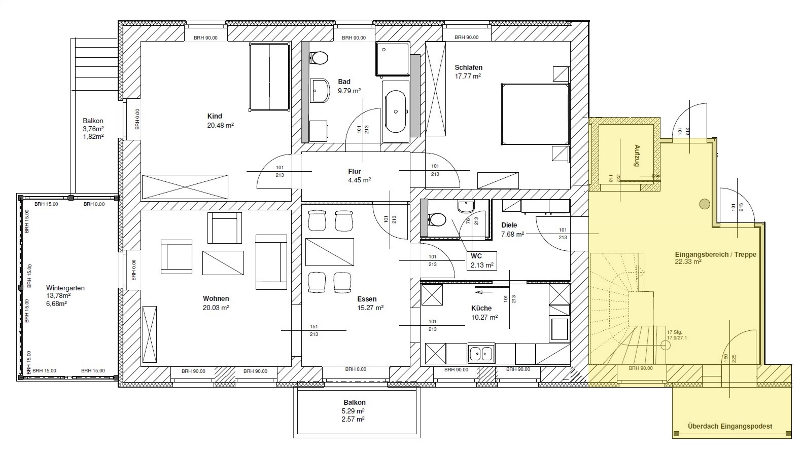
Diese geräumige Wohnung befindet sich im Erdgeschoss. Diese Wohnung bietet einen eigenen Wintergarten auf der Westseite und einen zweiten Balkon nach Süden.
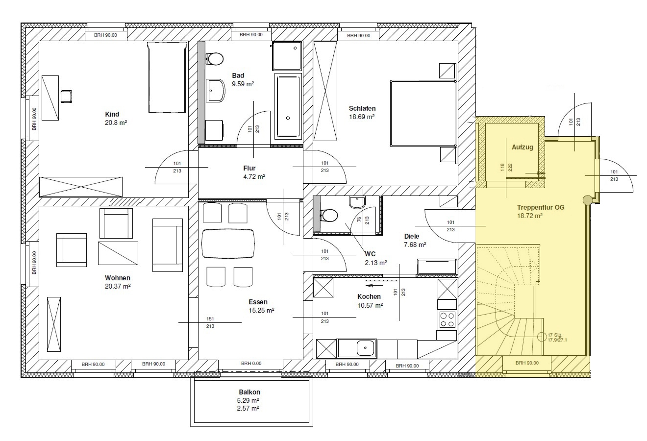
Diese geräumige Wohnung befindet sich im ersten Obergeschoss. Die Zimmer sind großzügig geschnitten und der Balkon öffnet den Essbereich nach Süden.
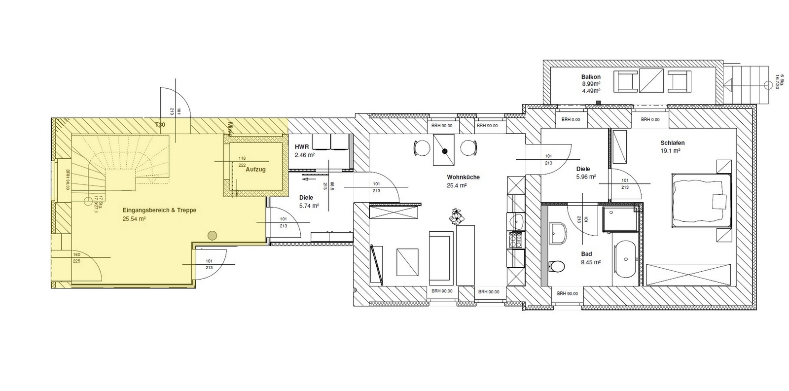
Diese geräumige Wohnung befindet sich im zweiten Obergeschoss. Die Zimmer sind großzügig geschnitten und der Balkon öffnet den Essbereich nach Süden.
Diese modern geschnittene Wohnung befindet sich im Erdgeschoss. Der Balkon ist nach Westen ausgerichtet.
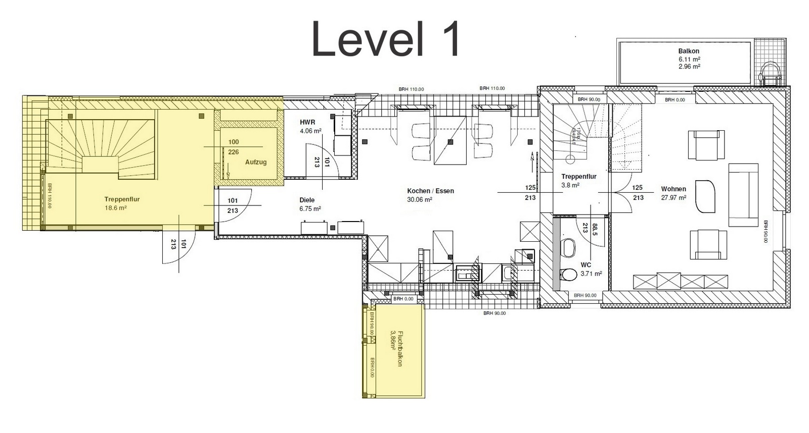
Diese moderne und großzügige Wohnung verläuft über zwei Geschosse. Das erste Wohnlevel ist im ersten Obergeschoss. Das zweite Level befindet sich im zweiten Obergeschoss. Jedes Wohnlevel hat einen eigenen Balkon.
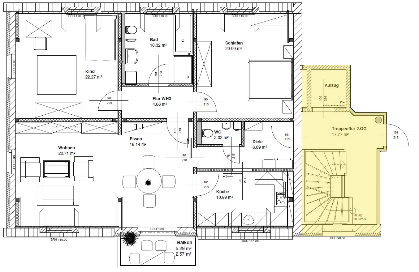
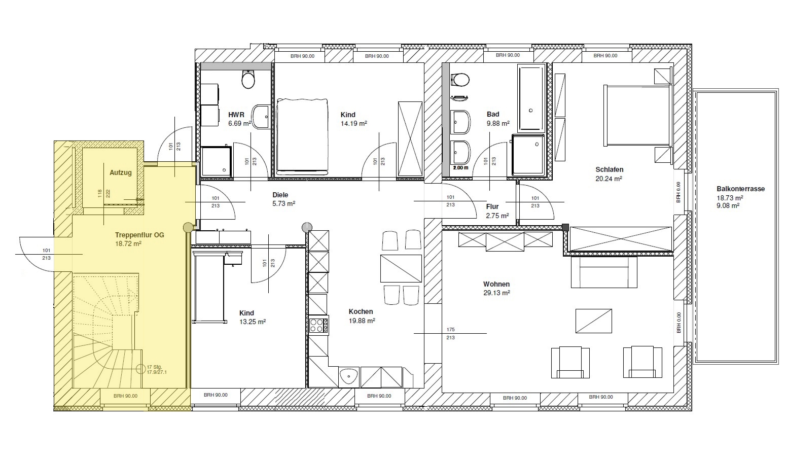
Diese moderne und großzügige Wohnung verläuft über drei Geschosse. Das erste Wohnlevel ist im dritten Obergeschoss. Das zweite Level befindet sich im vierten Obergeschoss und das dritte Level im fünften Obergeschoss. Jedes Wohnlevel hat einen eigenen Balkon, WC oder Bad.
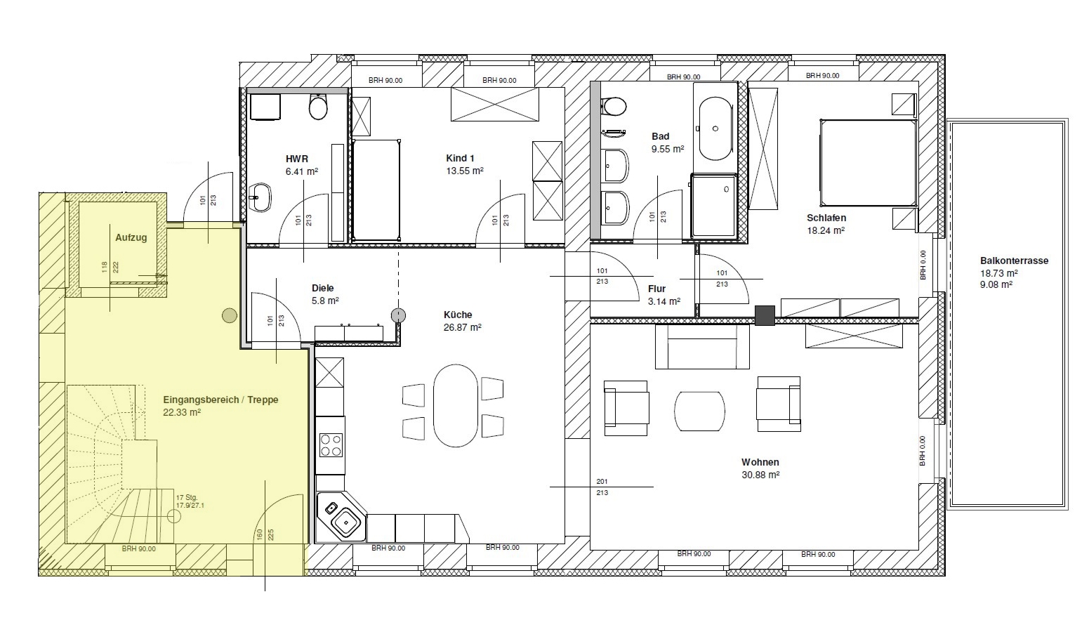
Diese geräumige Wohnung mit modernem Schnitt befindet sich im Erdgeschoss. Die große Balkonterrasse auf der Ostseite ist zum Priorgraben ausgerichtet.
Diese moderne geräumige Wohnung befindet sich im ersten Obergeschoss. Die große Balkonterrasse auf der Ostseite ist zum Priorgraben ausgerichtet.
Diese geräumige Wohnung ist modern geschnitten und befindet sich im zweiten Obergeschoss. Die große Balkonterrasse auf der Ostseite ist zum Priorgraben ausgerichtet.
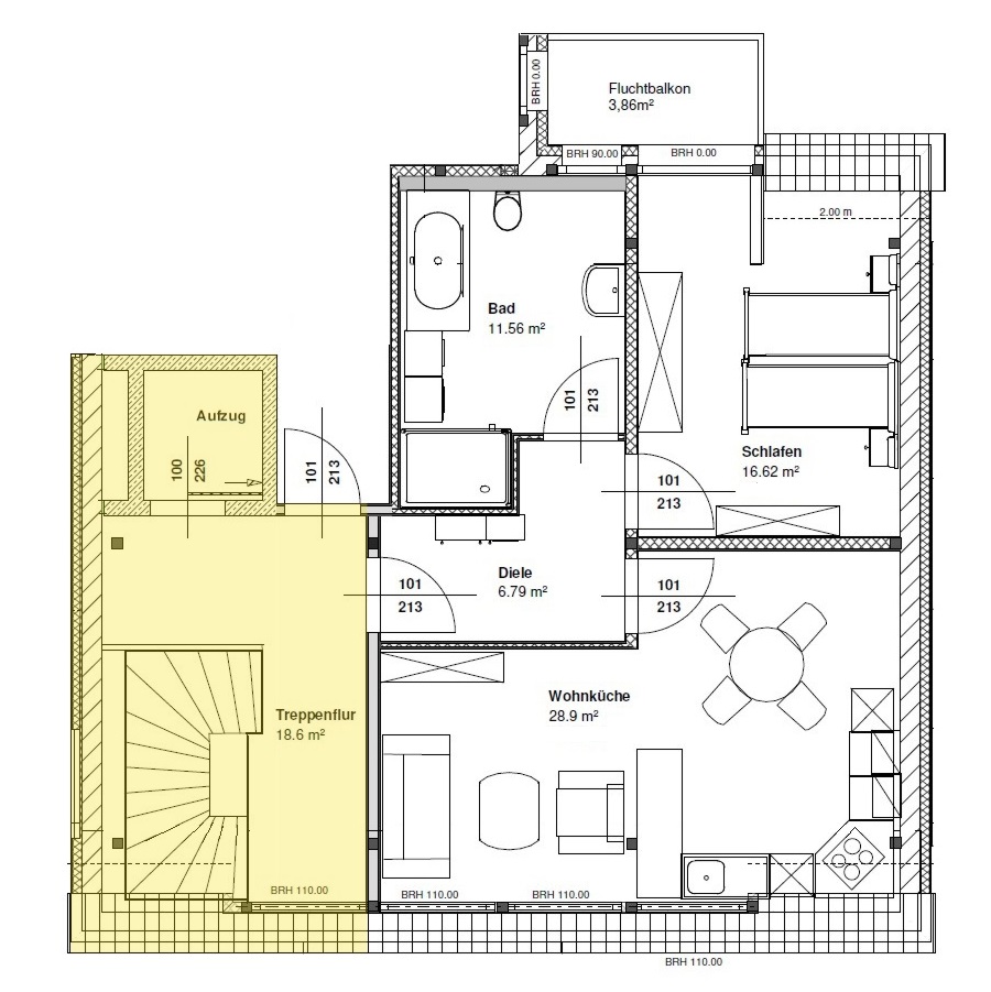
Diese moderne Wohnung befindet sich im dritten Obergeschoss. Sie bietet ein großes Bad und viel Platz zum Kochen und Wohlfühlen.
Diese Seite benutzt anonyme Cookies um die Sicherheit und die zuverlässige Erreichbarkeit der Webseite zu gewährleisten. Bitte beachte dazu auch unsere Datenschutzerklärung inclusive der Cookie Policy. Mit dem Klick auf Zustimmen, stimmst Du dem Setzen dieser notwendigen Cookies zu.